Pronađimo zajedno Vaš novi dom.



Centar Zagreba, Tuškanova ulica.
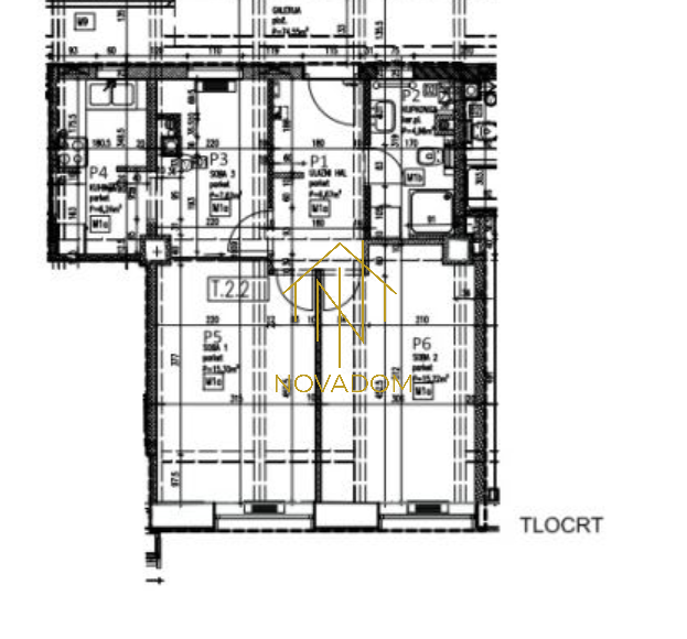
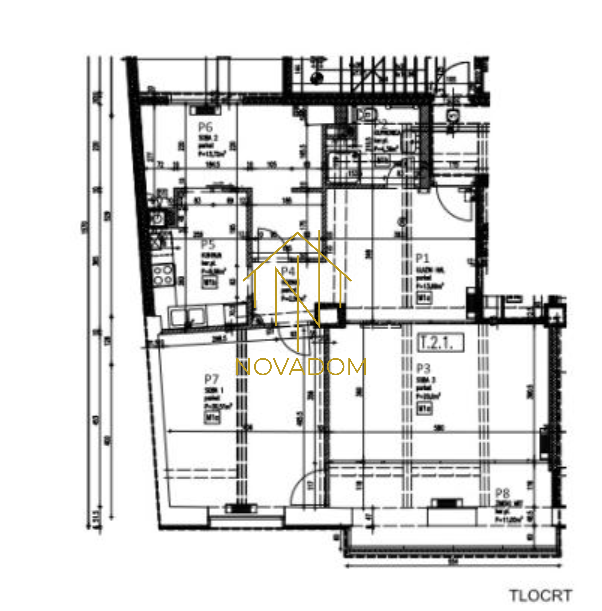
Iznajmljuje se prostran, potpuno opremljen i svijetao poslovni prostor od 160m2 na II katu u kvalitetnoj novijoj gradnji sa liftom.
Prostor sadrži 2 zasebna ulaza( 2 prostora spojena u jedan). Sastoji se: od hodnika, pet prostorija, čajne kuhinje, četiri sanitarna čvora, ostave, prostrane terase i loggie.
Energetski certifikat A.
Poslovnom prostoru na raspolaganju su tri garažna parkirna mjesta.
Za više informacija, stojimo na raspolaganju.
NOVOGRADNJA- BARUNA FILIPOVIĆA- 3S-70M2+GPM
Owning a home is a keystone of wealth… both financial affluence and emotional security.
Suze Orman